防城港市自然资源局关于广西源盛矿渣综合利用有限公司“新型环保建材”项目总平面规划设计方案及建筑立面设计方案的变更批前公示
我要收藏
公共资源调用站点
文章分享
根据《中华人民共和国城乡规划法》的有关规定,现对广西源盛矿渣综合利用有限公司“新型环保建材项目”总平面规划设计方案及建筑单体立面设计方案予以变更批前公示。
一、项目地址:大西南临港工业园B区东风路南侧、新风路东北侧
二、项目概况
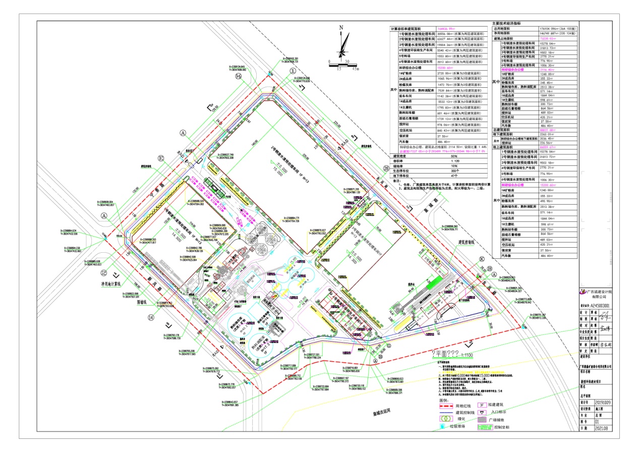
(一)批准规划设计条件(地字第450601201900267号):项目总用地面积176104.096㎡(264.155亩),净用地面积146749.887㎡(220.124亩),用地性质为三类工业用地,计容总建筑面积:≥117399.91㎡且≤293499.774㎡, 容积率:≥0.8且≤2.0,建筑密度:≥30%且≤50% ,绿地率≥10%且≤20% ,建筑高度 :≤40米。
(二)建设内容:项目总用地面积176104.096㎡(264.155亩),净用地面积146749.887㎡(220.124亩)规划总建筑面积88822.68㎡,计容建筑面积164436.99㎡,建筑占地面积73230.02㎡,容积率为1.120,建筑密度为50%,绿地率为10%,生态机动车停车位355个。
(三)调整内容:总平面布局调整,取消西侧值班室,科研综合办公楼建筑外形变更,原层数8层降为7层,取消一个主磨机,4号钢渣环保砖生产车间建筑外形变更 ,取消5号钢渣公路集料生产车间,增加熟料储存库、熟料调配库、脱硫石膏堆棚、熟料卸车棚、装车车间、1#、2#成品库、5号料场、空压机站等建构筑物。原有总建筑面积161631.88㎡,建筑占地面积73320.68㎡,容积率为1.10,建筑密度为49.96%,绿地率为10%,生态机动车停车位355个。其他原总平规划布局不变。
(四)建筑立面设计方案:建筑立面设计方案一
三、公告地点
(一)《防城港日报》《南国早报》《广西日报》等任何一家覆盖防城港新闻的综合类报纸媒体。
(二)防城港市自然资源局网站: http://fcg.dnr.gxzf.gov.cn。
(三)项目所在地现场:大西南临港工业园B区东风路南侧、新风路东北侧
项目审批涉及到的相关利害关系人如有意见,请将书面意见(署真实姓名、身份证号码、联系地址和通讯方式)于公示期(公示期为7日,具体公示时间以登报公示之日起开始计算,项目业主在拿到此函后须尽快进行现场及登报公示)内送达防城港市自然资源局工程规划管理科(联系电话:0770-2820082,防城港市港口区云南路30号天马大厦防城港市自然资源局,邮编:538001)。
四、本案图示

区位示意图
变更后的总平面规划设计方案
原批复的建筑立面设计方案一鸟瞰图
变更后的建筑立面设计方案一鸟瞰图
原批复的建筑立面设计方案一科研办公楼透视图
变更后的建筑立面设计方案一科研办公楼透视图
搅拌站透视图
防城港市自然资源局
2021年11月1日
文件下载:
关联文件:

当前位置:
桂公网安备 45060202000004号