防城港市自然资源局关于林显俦“林显俦私人住宅楼”总平面规划设计方案及建筑立面设计方案的批前公示
我要收藏
公共资源调用站点
文章分享
根据《中华人民共和国城乡规划法》的有关规定,现对林显俦“林显俦私人住宅楼”总平面规划设计方案及建筑立面设计方案予以批前公示。
一、项目地址:港口区公车新城
二、项目概况
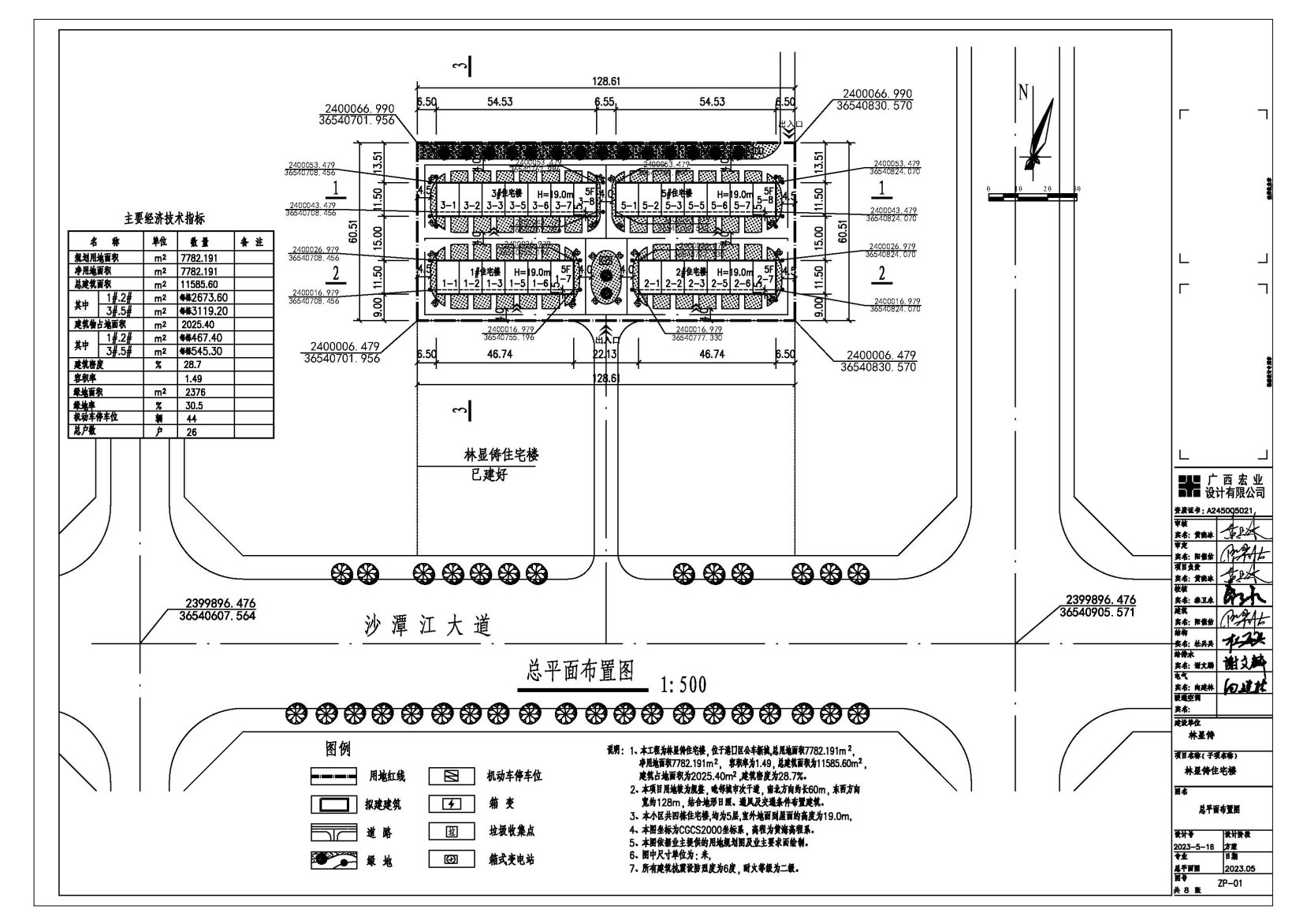
(一)建设内容:项目总用地面积为7782.191㎡(土地权属7909.81㎡),净用地面积为7782.191㎡,总建筑面积为11585.60㎡,总计容建筑面积11585.60㎡,容积率为1.49,建筑密度为28.7%,机动车位:44个,绿化率:30.5%
(二)建设方案:建筑立面设计方案一。
三、公告地点
(一)《防城港日报》《南国早报》《广西日报》等任何一家覆盖防城港新闻的综合类报纸媒体。
(二)防城港市自然资源局网站: http://fcg.dnr.gxzf.gov.cn。
(三)项目所在地现场:港口区公车新城。
项目审批涉及到的相关利害关系人如有意见,请将书面意见(署真实姓名、身份证号码、联系地址和通讯方式)于公示期(公示期为7个工作日,具体公示时间以登报公示之日起开始计算,项目业主在拿到此函后须尽快进行现场及登报公示)内送达防城港市自然资源局建设工程规划科(联系电话:0770-2820075,防城港市港口区云南路30号天马大厦防城港市自然资源局,邮编:538001)。
四、本案图示

区位图

总平图

方案一鸟瞰图

1#、2#住宅楼

3#、5#住宅楼
防城港市自然资源局
2024年9月6日
文件下载:
关联文件:

当前位置:
桂公网安备 45060202000004号