防城港市自然资源局关于防城港市楚源贸易有限公司“工业气体储存、充装、经营及食品添加剂包装项目”变更总平面规划设计方案及建筑立面设计方案的批前公示
我要收藏
公共资源调用站点
文章分享
根据《中华人民共和国城乡规划法》的有关规定,现对防城港市楚源贸易有限公司“工业气体储存、充装、经营及食品添加剂包装项目”变更总平面规划设计方案及建筑立面设计方案予以批前公示。
一、项目地址:港口区新兴路
二、项目概况
(一) 批准规划设计条件(地字第450602201800022号):地块总用地面积11522.22㎡,净用地面积9339.76㎡,用地性质为二类工业用地,建设规模:≥6537.832㎡且≤18679.52㎡,容积率:≥0.7且≤2.0,建筑密度:≥30%且≤50% ,绿地率:≥10%且≤20%,建筑限高 :≤40m,配备车位:0.5泊位/1000㎡建筑面积。
(二)建设内容:地块总用地面积为11522.22㎡,净用地面积为9339.76㎡,总建筑面积为5704.84㎡,总计容建筑面积9728.84㎡,容积率为1.04,建筑密度为51.0%,机动车位:18个,绿化率:10.2%。
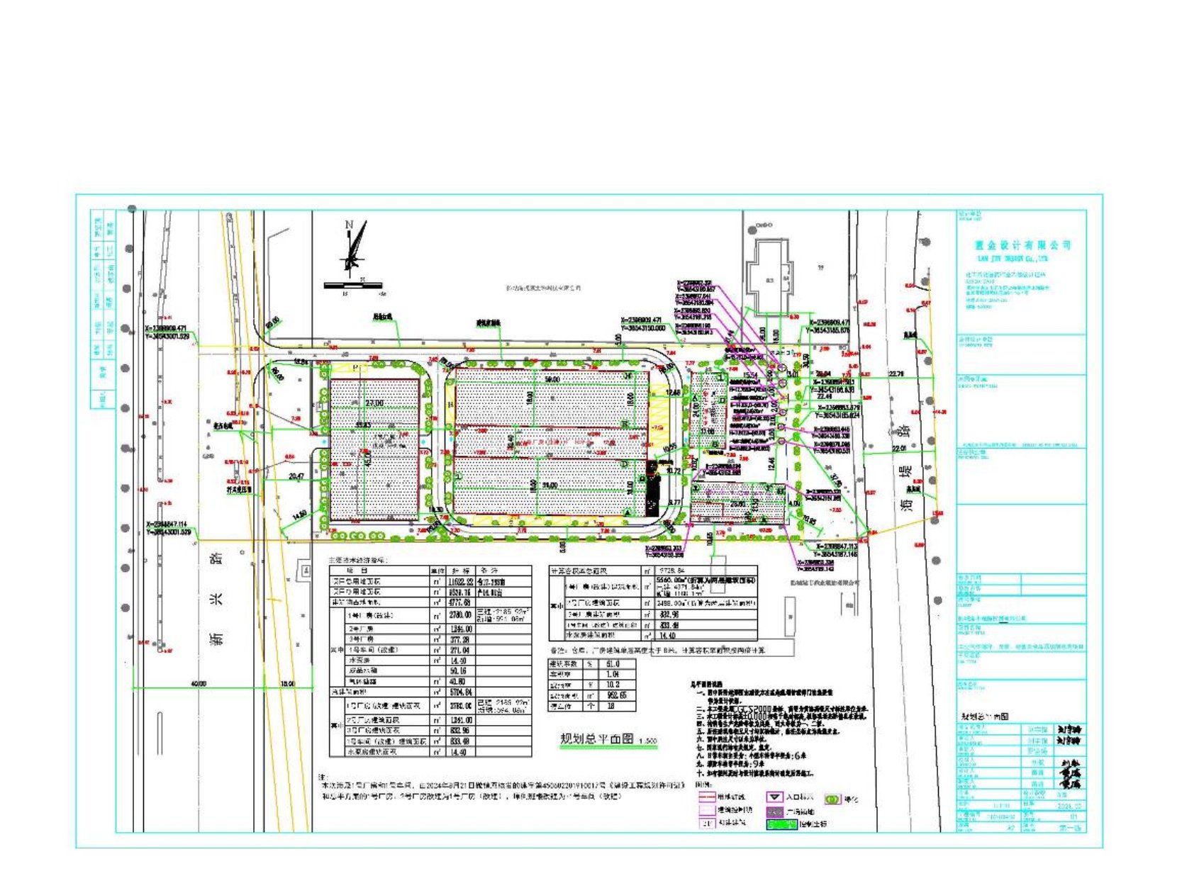
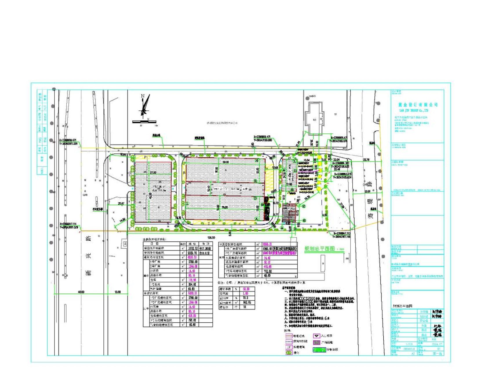
(三)调整内容:优化总平面布局,原总平面仓库变更为3号厂房,1号厂房(改建)防火等级由乙类调整为戊类,其余总平面内容不变。
(四)建设方案:建筑立面设计方案一。
(五)撤销防城港市自然资源局2024年7月2日审查同意的《防城港市楚源贸易有限公司“工业气体储存、充装、经营及食品添加剂包装项目”变更总平面规划设计方案及建筑立面设计方案的批前公示》。
三、公告地点
(一)《防城港日报》《南国早报》《广西日报》等任何一家覆盖防城港新闻的综合类报纸媒体。
(二)防城港市自然资源局网站: http://fcg.dnr.gxzf.gov.cn。
(三)项目所在地现场:港口区新兴路
项目审批涉及到的相关利害关系人如有意见,请将书面意见(署真实姓名、身份证号码、联系地址和通讯方式)于公示期(公示期为7日,具体公示时间以登报公示之日起开始计算,项目业主在拿到此函后须尽快进行现场及登报公示)内送达防城港市自然资源局建设工程规划科(联系电话:0770-2820075,防城港市港口区云南路30号天马大厦防城港市自然资源局,邮编:538001)。
四、本案图示

区位图

新总平面图

旧总平面图

鸟瞰图

1号车间透视图

3号厂房透视图

厂房透视图

水泵房、成品水箱透视图
防城港市自然资源局
2024年9月27日
文件下载:
关联文件:

当前位置:
桂公网安备 45060202000004号