防城港市自然资源局关于广西长科新材料有限公司“广西长科9万吨/年工程树脂黑色母粒技改项目(地块16)”变更总平面规划设计方案的批前公示
我要收藏
公共资源调用站点
文章分享
根据《中华人民共和国城乡规划法》的有关规定,现对广西长科新材料有限公司“广西长科9万吨/年工程树脂黑色母粒技改项目(地块16)”变更总平面规划设计方案予以批前公示。
一、项目地址:港口区企沙工业区。
二、项目概况
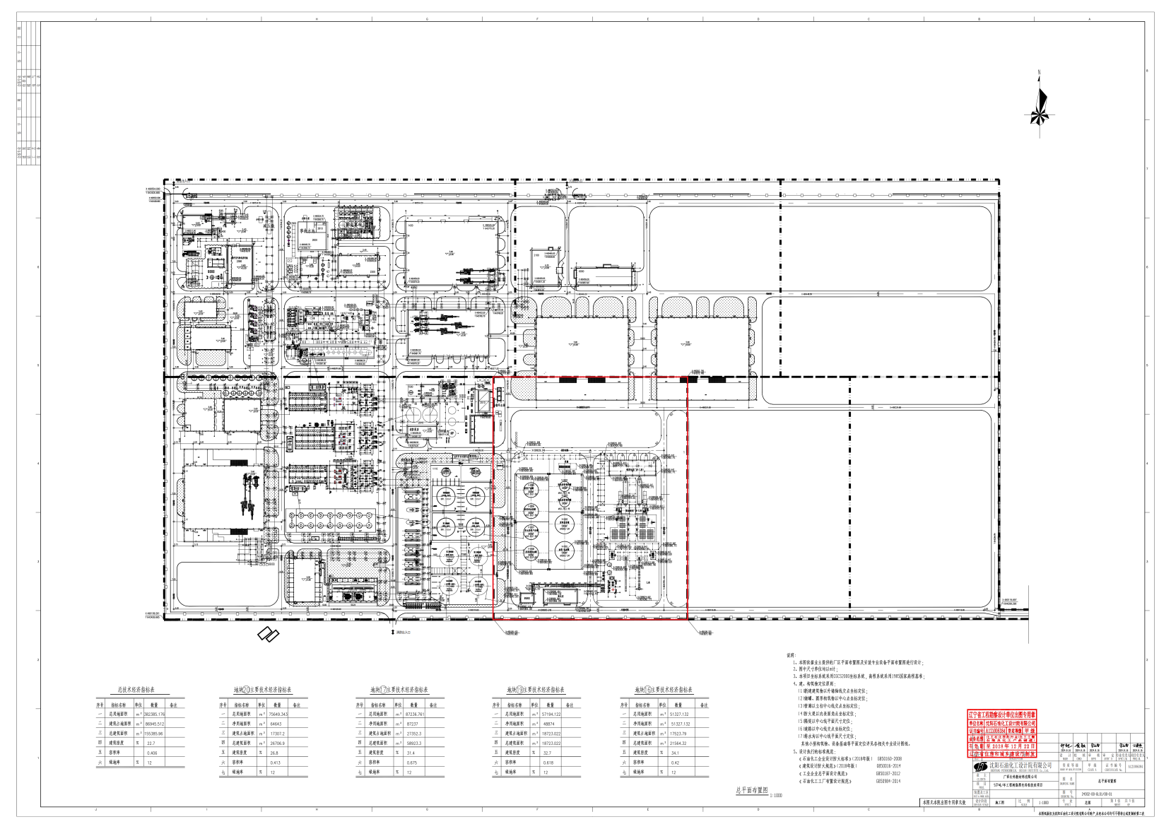
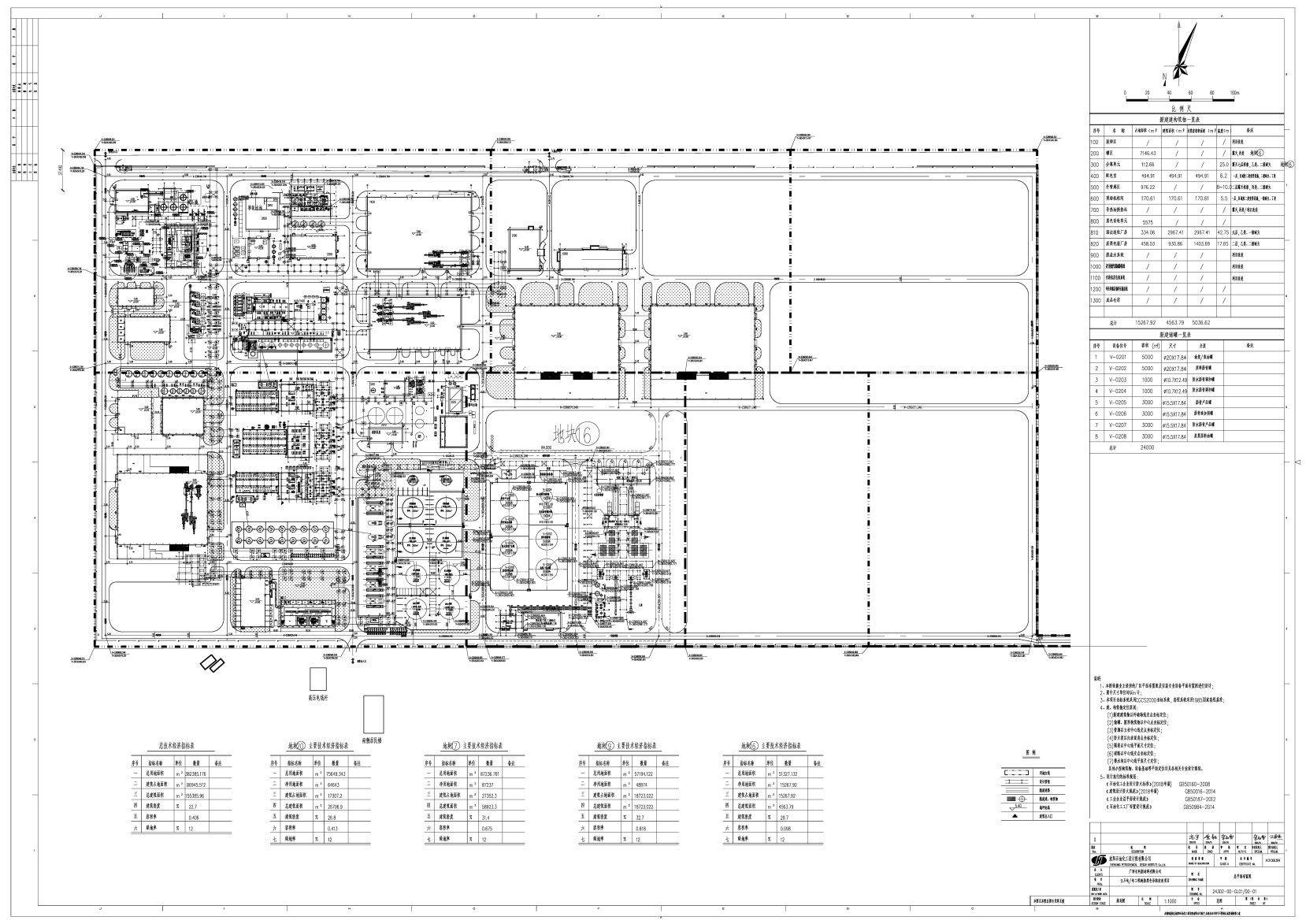
(一) 批准规划设计条件(地字第450601201400334号):地块总用地面积51327.132㎡,净用地面积51327.132㎡,用地性质为三类工业用地,建设规模:≤51327.0㎡,容积率:≤1.0,建筑密度:≤45% ,建筑限高 :≤50m。
(二)建设内容:地块总用地面积为51327.132㎡,净用地面积为51327.132㎡,总建筑面积为4563.79㎡,总计容建筑面积5036.62㎡,容积率为0.098,建筑密度为29.7%,绿化率:12%。
(三)调整内容:优化总平面布局,调整了包装厂房和湿法造粒厂房的建筑高度及外立面效果。
(四) 建设方案:建筑立面设计方案一。
三、公告地点
(一)《防城港日报》《南国早报》《广西日报》等任何一家覆盖防城港新闻的综合类报纸媒体。
(二)防城港市自然资源局网站: http://fcg.dnr.gxzf.gov.cn。
(三)项目所在地现场:港口区企沙工业区。
项目审批涉及到的相关利害关系人如有意见,请将书面意见(署真实姓名、身份证号码、联系地址和通讯方式)于公示期(公示期为7日,具体公示时间以登报公示之日起开始计算,项目业主在拿到此函后须尽快进行现场及登报公示)内送达防城港市自然资源局工程规划管理科(联系电话:0770-2820075,防城港市港口区云南路30号天马大厦防城港市自然资源局,邮编:538001)。
四、本案图示

区位图

旧总平面图

新总平图

鸟瞰图

湿法造粒厂房

包装厂房

现场机柜间

配电室
防城港市自然资源局
2024年10月29日
文件下载:
关联文件:

当前位置:
桂公网安备 45060202000004号