防城港市自然资源局关于广西华仞生物工程技术有限公司“广西华仞CDMO项目”变更总平面规划设计方案的批前公示
我要收藏
公共资源调用站点
文章分享
根据《中华人民共和国城乡规划法》的有关规定,现对广西华仞生物工程技术有限公司“广西华仞CDMO项目”变更总平面规划设计方案予以批前公示。
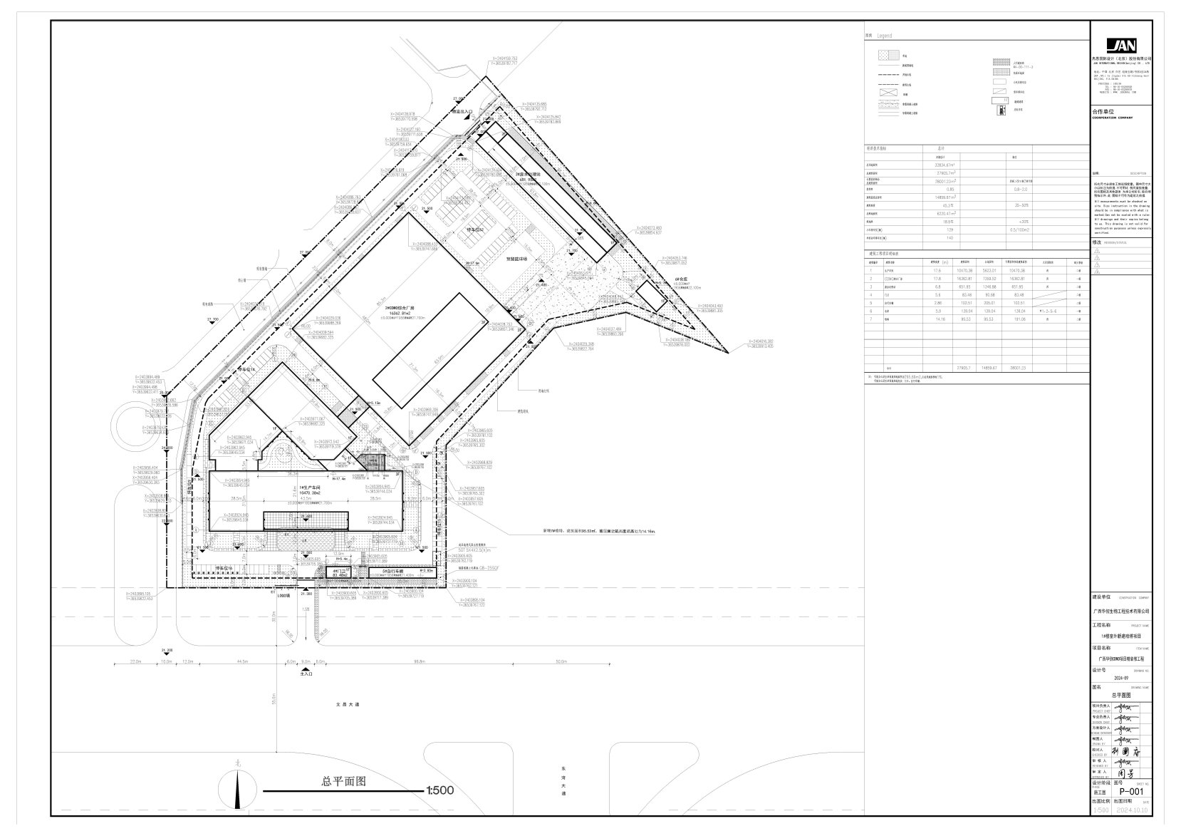
一、项目地址:防城港市文昌大道与东湾大道路口北侧。
二、项目概况
(一) 批准规划设计条件(地字第450600202000247号):地块总用地面积36354.67㎡,净用地面积36354.67㎡,用地性质为一类工业用地,建设规模:≥29083.74且≤72709.34㎡,容积率:≥0.8且≤2.0,建筑密度:≥35%且≤50% ,绿地率:≤20%,建筑限高 :≤60m,机动车位:按规范设置。
(二)建设内容:地块总用地面积为36354.67㎡,净用地面积为36354.67㎡,总建筑面积为27905.7㎡,总计容建筑面积28001.23㎡,容积率为0.85,建筑密度为45.3%,绿化率:18.9%,机动车位:129。
(三)调整内容:新增一栋建筑面积为95.53㎡的喷塔,其余内容不变。
(四) 建设方案:建筑立面设计方案一。
三、公告地点
(一)《防城港日报》《南国早报》《广西日报》等任何一家覆盖防城港新闻的综合类报纸媒体。
(二)防城港市自然资源局网站: http://fcg.dnr.gxzf.gov.cn。
(三)项目所在地现场:防城港市文昌大道与东湾大道路口北侧。
项目审批涉及到的相关利害关系人如有意见,请将书面意见(署真实姓名、身份证号码、联系地址和通讯方式)于公示期(公示期为7日,具体公示时间以登报公示之日起开始计算,项目业主在拿到此函后须尽快进行现场及登报公示)内送达防城港市自然资源局建设工程规划科(联系电话:0770-2820075,防城港市港口区云南路30号天马大厦防城港市自然资源局,邮编:538001)。
四、本案图示

区位图

新总平面图

旧总平面图

鸟瞰图

喷塔透视图
防城港市自然资源局
2024年11月4日
文件下载:
关联文件:

当前位置:
桂公网安备 45060202000004号