防城港市自然资源局关于防城港市铭辰投资开发有限公司“防城港医药制造产业园及配套工程项目防城港医药制造产业园(北片区)”总平面规划设计方案及建筑立面设计方案的批前公示
我要收藏
公共资源调用站点
文章分享
根据《中华人民共和国城乡规划法》的有关规定,现对防城港市铭辰投资开发有限公司“防城港医药制造产业园及配套工程项目防城港医药制造产业园(北片区)”总平面规划设计方案及建筑立面设计方案予以批前公示。
一、项目地址:防城港高新技术开发区。
二、项目概况
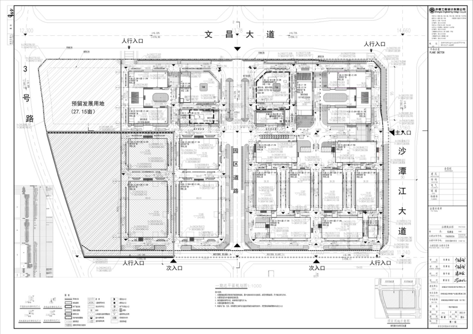
(一) 批准规划设计条件:地块总用地面积164134.01㎡,净用地面积156164.43㎡,用地性质为工业用地,建设规模:≥156164.43㎡且≤312328.86㎡,容积率:≥1.0且≤2.0,建筑密度:≥40% ,绿地率:≥10%且≤20%,建筑限高 :≤40m,配备车位:按规范设置。
(二)建设内容:地块总用地面积为164134.01㎡,净用地面积为156164.43㎡,总建筑面积为217337.31㎡,总计容建筑面积211497.33㎡,容积率为1.45,建筑密度为36.83%(目前尚有部分预留发展用地,后期至少保证满足≥40%)绿化率:6.8%(目前尚有部分预留发展用地,后期至少保证满足≥10%),机动车位:540个。
(三)建设方案:建筑立面设计方案一。
(四)防城港市自然资源局2024年9月10日本项目批前公示作废。
三、公告地点
(一)《防城港日报》《南国早报》《广西日报》等任何一家覆盖防城港新闻的综合类报纸媒体。
(二)防城港市自然资源局网站: http://fcg.dnr.gxzf.gov.cn。
(三)项目所在地现场:防城港高新技术开发区。
项目审批涉及到的相关利害关系人如有意见,请将书面意见(署真实姓名、身份证号码、联系地址和通讯方式)于公示期(公示期为7日,具体公示时间以登报公示之日起开始计算,项目业主在拿到此函后须尽快进行现场及登报公示)内送达防城港市自然资源局建设工程规划科(联系电话:0770-2820075,防城港市港口区云南路30号天马大厦防城港市自然资源局,邮编:538001)。
四、本案图示

区位图

总平面图

鸟瞰图

标准厂区透视图

沿街东北向透视图

专用厂区透视图
防城港市自然资源局
2024年11月4日
文件下载:
关联文件:

当前位置:
桂公网安备 45060202000004号