防城港市自然资源局关于防城港市福满地物业投资开发有限公司“圆博府”项目总平面规划设计及建筑立面设计方案的批前公示
我要收藏
公共资源调用站点
文章分享
根据《中华人民共和国城乡规划法》的有关规定,现对防城港市福满地物业投资开发有限公司“圆博府”项目总平面规划设计及建筑立面设计方案予以批前公示。
一、项目地址:防城港市中心区港湾街北侧。
二、项目概况
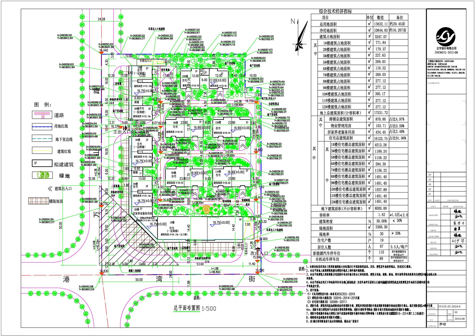
(一)批准规划设计条件(地字第450600202000383号):总用地面积:13632.11㎡,净用地面积:10844.83㎡,用地性质为零售商业、城镇住宅用地,计容总建筑面积:≥13632.11㎡且≤27264.22㎡,容积率:≥1.0且≤2.0,建筑密度:≤30%,绿地率:≥30%,建筑限高:≤60米。
(二)建设内容:总用地面积:13632.11㎡,净用地面积:10844.83㎡,总建筑面积25531.72㎡,计容建筑面积17531.72㎡,容积率为1.62,建筑密度为30.00%,绿地率为30%,机动车停车位110个。
(三)建设方案:建筑设计方案一。
三、公告地点
(一)《防城港日报》《广西日报》《南国早报》等任何一家覆盖防城港新闻的综合类报纸媒体。
(二)防城港市自然资源局网站: http://fcg.dnr.gxzf.gov.cn。
(三)项目所在地现场:防城港市中心区港湾街北侧。
项目审批涉及到的相关利害关系人如有意见,请将书面意见(署真实姓名、身份证号码、联系地址和通讯方式)于公示期(公示期为7个工作日,具体公示时间以登报公示之日起开始计算,项目业主在拿到此函后须尽快进行现场及登报公示)内送达防城港市自然资源局建设工程规划科(联系电话:0770-2820075,防城港市港口区云南路30号天马大厦,邮编:538001)。
四、本案图示

区位示意图

总平面图

方案一鸟瞰图

方案一沿街南面透视图

沿街西面方案一透视图

8#、11#(9#、12#)方案一透视图

10#楼方案一透视图
防城港市自然资源局
2024年11月7日
文件下载:
关联文件:

当前位置:
桂公网安备 45060202000004号