防城港市自然资源局关于防城港务集团有限公司“防城港市海产品市场”项目总平面规划设计方案变更批前公示
我要收藏
公共资源调用站点
文章分享
根据《中华人民共和国城乡规划法》的有关规定,现对防城港务集团有限公司“防城港市海产品市场”项目总平面规划设计方案变更及建筑立面设计方案予以批前公示。
一、项目地址:港口区海珍路北面。
二、项目概况
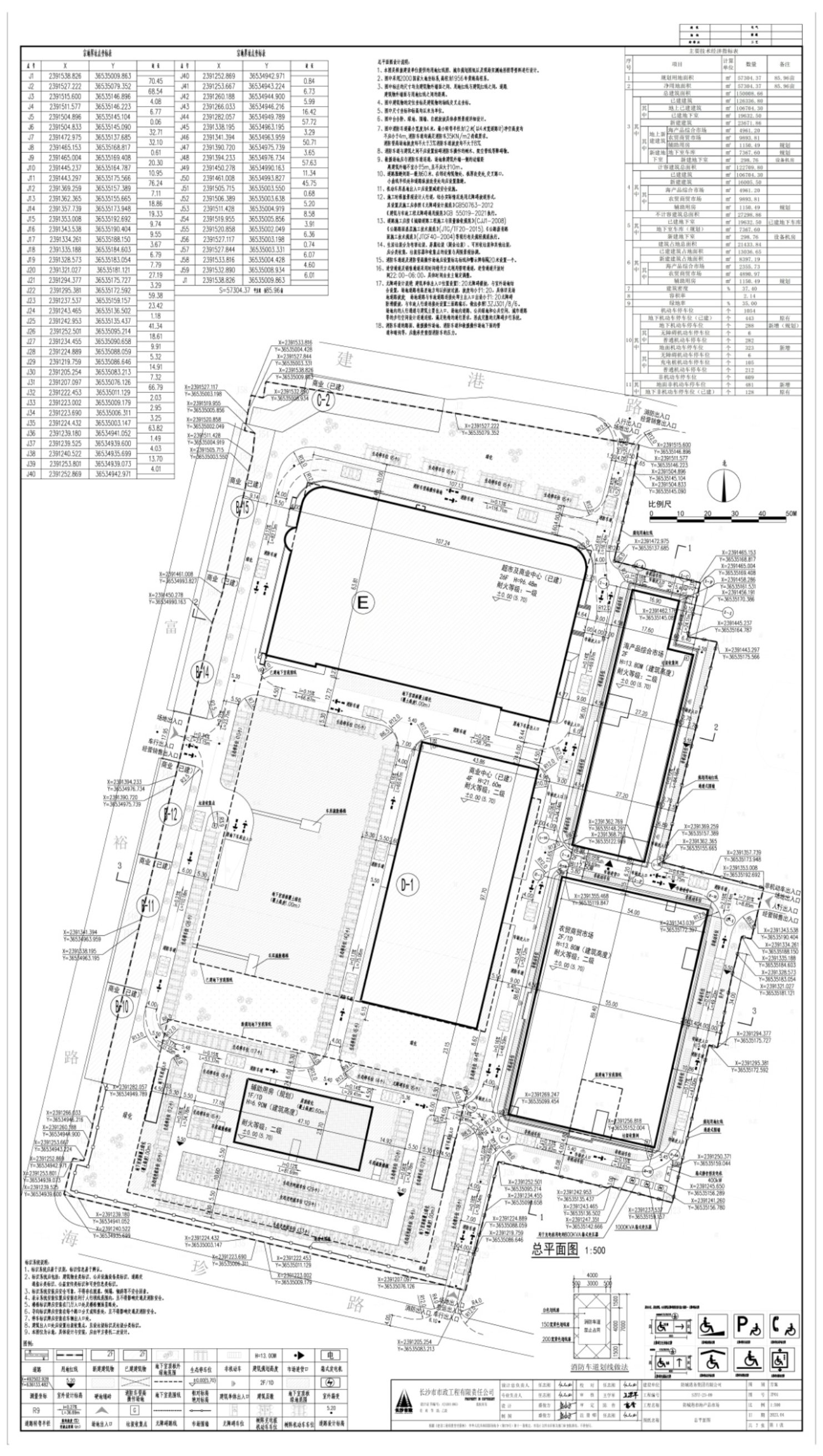
(一)批准规划设计条件(地字第4506002023YG0002397号):总(净)用地面积:57304.37㎡,,用地性质为商业用地、城镇住宅用地,建设规模:≤171913.11㎡,容积率:≤3.0,建筑密度:≤40%,绿地率:≥30%,建筑限高:≤100米。
(二)建设内容:总(净)用地面积:57304.37㎡,总建筑面积150008.66㎡,计容建筑面积122709.80㎡,容积率为2.14,建筑密度为37.40%,绿地率为35%,机动车停车位1054个,非机动车停车位609个。
(三)变更内容:总平面规划布局变更,南侧增加一座配套用房,停车位增加,其余不变。原建设内容:总建筑面积148858.17㎡,计容建筑面积121559.31㎡,容积率为2.12,建筑密度为35.40%,绿地率为35%,机动车停车位1042个,非机动车停车位609个。
三、公告地点
(一)《防城港日报》《广西日报》《南国早报》等任何一家覆盖防城港新闻的综合类报纸媒体。
(二)防城港市自然资源局网站: http://fcg.dnr.gxzf.gov.cn。
(三)项目所在地现场:港口区海珍路北面。
项目审批涉及到的相关利害关系人如有意见,请将书面意见(署真实姓名、身份证号码、联系地址和通讯方式)于公示期(公示期为7个工作日,具体公示时间以登报公示之日起开始计算,项目业主在拿到此函后须尽快进行现场及登报公示)内送达防城港市自然资源局建设工程规划科(联系电话:0770-2820075,防城港市港口区云南路30号天马大厦,邮编:538001)。
四、本案图示

区位示意图

原批复的总平面图

变更后的总平面图
防城港市自然资源局
2024年11月12日
文件下载:
关联文件:

当前位置:
桂公网安备 45060202000004号