防城港市自然资源局关于防城港市华福农业科技有限公司“硫酸铵综合利用产 业及进出口基地示范项目”项目总平面规划设计及建筑立面设计方案的批前公示
我要收藏
公共资源调用站点
文章分享
根据《中华人民共和国城乡规划法》的有关规定,现对防城港市华福农业科技有限公司“硫酸铵综合利用产业及进出口基地示范项目”项目总平面规划设计及建筑立面设计方案予以批前公示。
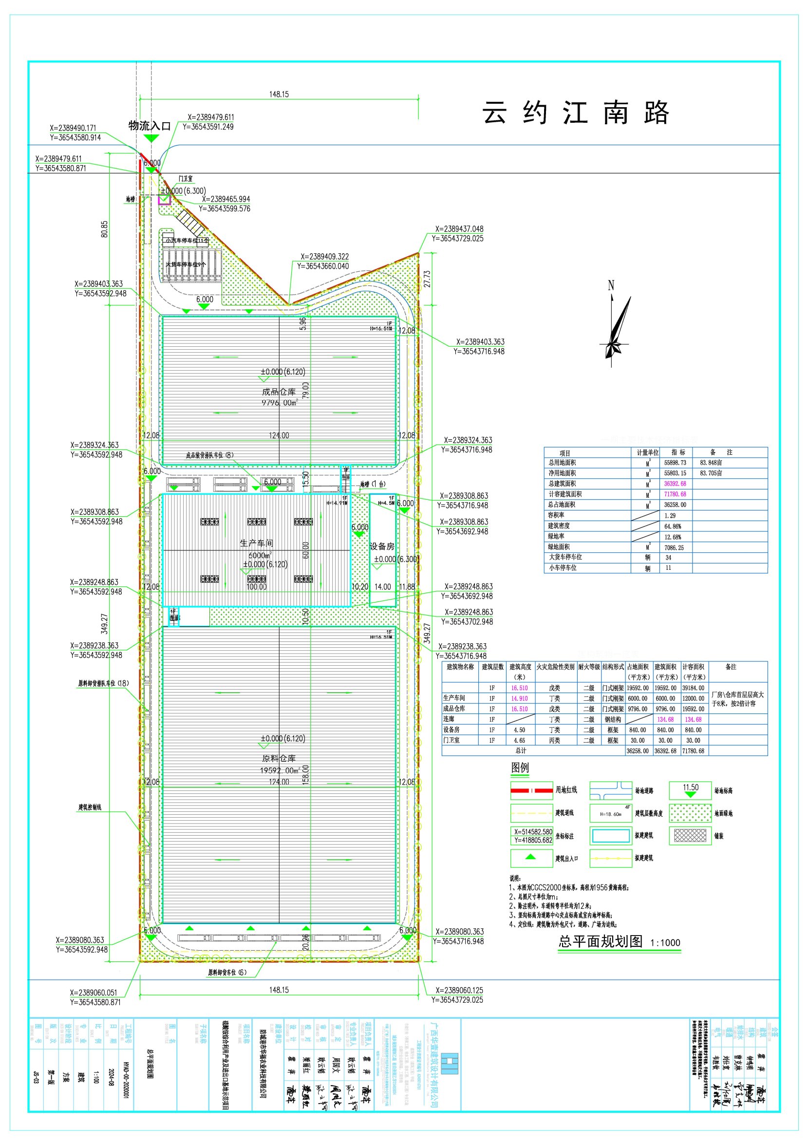
一、项目地址:企沙工业园区云约江南路南侧。
二、项目概况
(一)批准规划设计条件(地字第4506002024YG0031424号):总用地面积:55898.73㎡,净用地面积:55803.15㎡,用地性质为工业用地,计容总建筑面积:≥44642.52㎡且≤111606.30㎡,容积率:≥0.8且≤2.0,绿地率:≥10%且≤20%,建筑限高:≤40米。
(二)建设内容:总用地面积:55898.73㎡,净用地面积:53921.44㎡,净用地面积:55803.15㎡,计容建筑面积71780.68㎡,容积率为1.29,建筑密度为64.86%,绿地率为12.68%,机动车停车位45个。
(三)建设方案:建筑设计方案一。
三、公告地点
(一)《防城港日报》《广西日报》《南国早报》等任何一家覆盖防城港新闻的综合类报纸媒体。
(二)防城港市自然资源局网站: http://fcg.dnr.gxzf.gov.cn。
(三)项目所在地现场:企沙工业园区云约江南路南侧。
项目审批涉及到的相关利害关系人如有意见,请将书面意见(署真实姓名、身份证号码、联系地址和通讯方式)于公示期(公示期为7个工作日,具体公示时间以登报公示之日起开始计算,项目业主在拿到此函后须尽快进行现场及登报公示)内送达防城港市自然资源局建设工程规划科(联系电话:0770-2820075,防城港市港口区云南路30号天马大厦,邮编:538001)。
四、本案图示

区位示意图

总平面图

方案鸟瞰图

方案整体透视图

成品仓库透视图

生产车间透视图

原料仓库透视图
防城港市自然资源局
2024年11月11日
文件下载:
关联文件:

当前位置:
桂公网安备 45060202000004号